|
|
Стальные паровые котлы BHP паропроизводительностью 140-5000 кг/ч. | 
|
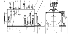
 | Жаротрубный стальной паровой котел с тупиковой горизонтальной газоплотной топкой и периферийным пучком дымогарных труб со встроенными турбулизаторами паропроизводительностью от 140 до 5000 кг пара в час. Факел горелки, работающей под наддувом, формируется вдоль горизонтальной оси цилиндрической тупиковой топки от фронта котла, с возвратным движением к фронту и разворотом к периферийно расположенному в водяном объеме котла пучку жаровых труб конвективной поверхности теплообмена. Продукты сгорания по жаровым трубам конвективной поверхности поступают в газосборный коллектор в задней части котла, оснащенный газоотводящим патрубком. Для интенсификации теплообмена все трубы конвективной поверхности оснащаются шнековыми турбулизаторами из нержавеющей стали.Рабочее давление -12 и 15 бар Топливо - природный газ, дизельное топливо, топочный мазут. Общее описание. - Стальной двухходовой жаротрубный паровой котел с горизонтальной цилиндрической топкой с реверсивным развитием факела и периферийным расположением дымогарных труб конвективных поверхностей теплообмена, оснащенных турбулизаторами. - Внешний кожух котла изготовлен из алюминия. Толщина теплоизоляции из минеральной ваты равна 60 мм - Фронтальная дверь закрывает топку и обеспечивает уплотнение периметра со стороны продуктов сгорания для формирования газового потока на входе в конвективную поверхность теплообмена. Теплоизоляция осуществляется блоком из жаропрочной и стойкой к эрозии керамики. - Котел оснащен опорной рамой из стального профиля для монтажа на фундаменте, имеет два кронштейна (проушины) для подъема котла. ТЕХНИЧЕСКИЕ ХАРАКТЕРИСТИКИ КОТЛОВ BHP. |
| Модель парового котла BHP | | 140 | 200 | 300 | 400 | 500 | 700 | 800 | 1000 | 1250 | 1500 | 1750 | 2000 | 2500 | 3000 | 3500 | 4000 | 5000 | | Полезная мощность котла | кВт | 100 | 140 | 210 | 270 | 350 | 490 | 560 | 700 | 870 | 1050 | 1220 | 1400 | 1740 | 209 | 2440 | 2790 | 3462 | | Паропроизводительность котла | кг/ч | 140 | 200 | 300 | 400 | 500 | 700 | 800 | 1000 | 1250 | 1500 | 1750 | 2000 | 2500 | 3000 | 3500 | 4000 | 5000 | | К.П.Д. котла при номинальной мощности | % | 90,1 | 90,1 | 90,1 | 90,1 | 90,1 | 90,1 | 90,1 | 90,1 | 90,1 | 90,1 | 90,1 | 90,1 | 90,1 | 90,1 | 90,1 | 90,1 | 90,1 | | Расход природного газа* | м3/ч | 11,7 | 16,6 | 25,0 | 33,3 | 41,5 | 58,3 | 66,6 | 83,2 | 104,0 | 124,8 | 145,7 | 166,5 | 208,0 | 249,7 | 291,2 | 332,9 | 416,2 | | Расход жидкого топлива* | кг/ч | 9,1 | 12,9 | 19,5 | 26,0 | 32,4 | 45,4 | 51,9 | 64,8 | 81,0 | 97,3 | 113,6 | 129,8 | 162,1 | 194,6 | 227,0 | 259,4 | 324,4 | | Диаметр топки котла | мм | 432 | 432 | 480 | 480 | 576 | 576 | 626 | 626 | 724 | 724 | 724 | 822 | 872 | 940 | 940 | 1064 | 1110 | | Длина топки котла | мм | 1110 | 1110 | 1409 | 1409 | 1659 | 1659 | 1660 | 1860 | 1860 | 2110 | 2405 | 2340 | 2660 | 2660 | 2860 | 3082 | 4020 | | Объем котловой воды, min | м3 | 0,32 | 0,32 | 0,44 | 0,44 | 0,69 | 0,69 | 0,87 | 0,96 | 1,28 | 1,44 | 1,58 | 1,86 | 2,55 | 2,68 | 2,83 | 4,15 | 5,05 | | Объем котловой воды, max | м3 | 0,38 | 0,38 | 0,53 | 0,53 | 0,8 | 0,8 | 1 | 1,11 | 1,45 | 1,63 | 1,8 | 2,09 | 2,82 | 2,98 | 3,15 | 4,55 | 5,56 | | Аэродинамическое сопротивление | мбар | 1,5 | 2,5 | 3 | 3,5 | 4,2 | 4,5 | 5 | 6 | 6,5 | 6,8 | 7 | 7 | 8 | 8,2 | 9 | 10 | 10,2 | | Ø присоединения паропровода | мм | 25 | 25 | 32 | 32 | 40 | 40 | 50 | 50 | 65 | 65 | 80 | 80 | 80 | 80 | 100 | 100 | 100 | | Ø присоединения дренажа | мм | 25 | 25 | 25 | 25 | 25 | 25 | 25 | 25 | 25 | 25 | 25 | 40 | 40 | 40 | 40 | 40 | 40 | | Ø присоединения предохр. клапана | Dn | 2x25 | 2x25 | 2x25 | 2x25 | 2x25 | 2x25 | 2x25 | 2x25 | 2x25 | 2x25 | 2x32 | 2x32 | 2x32 | 2x32 | 2x32 | 2x40 | 2x40 | | Минимальная длина эмиссионной трубы горелки | мм | 320 | 320 | 320 | 320 | 320 | 320 | 320 | 320 | 320 | 320 | 350 | 350 | 350 | 350 | 350 | 370 | 450 | | Ø присоединения горелки | мм | 150 | 150 | 170 | 170 | 200 | 200 | 250 | 250 | 300 | 300 | 300 | 300 | 300 | 340 | 340 | 370 | 370 | | Ø присоединения газохода | мм | 200 | 200 | 250 | 250 | 250 | 250 | 250 | 250 | 300 | 300 | 300 | 350 | 350 | 400 | 400 | 450 | 550 | | Вес котла без воды | кг | 1150 | 1150 | 1 450 | 1 450 | 2 200 | 2 200 | 2 550 | 2 800 | 3 300 | 3 650 | 3 900 | 4 650 | 5500 | 6400 | 6850 | 8600 | 12500 | | Рабочее давление - 12 бар | Температура уходящих газов - 2400С | Температура питательной воды -700С, давление - 11,7 бара |
|  | Стандартная комплектация паровых котлов: 1. Два указателя уровня с отсечным и дренажным краном. 2. Два крана проверки уровня воды 3. Главный парозапорный кран. 4. Автоматика безопасности 5. Два рычажных предохранительных клапана безопасности 6. Манометр с 3-х ходовым краном 7. Внешнее покрытие из алюминия. 8. Турбулизатры из нержавеющей стали 9. Узел слива (сливной клапан и запорный кран) 10. Два питательных насоса с обратными клапанами. 11. Щит электроснабжения и управления котлом 12. Ответные фланцы для гидравлических присоединений. | Дополнительная комплектация паровых котлов BHP: Второе реле рабочего давления Монтажный фланец под горелку Внешнее покрытие из нержавеющей стали Автоматизированный узел периодической продувки Узел непрерывной продувки (клапан быстрого вывода шлама) |
| Модель котла | | 140 | 200 | 300 | 400 | 500 | 700 | 800 | 1000 | 1250 | 1500 | 1750 | 2000 | 2500 | 3000 | 3500 | 4000 | 5000 | | A | мм | 954 | 954 | 1 046 | 1 046 | 1 190 | 1 190 | 1 310 | 1 310 | 1 500 | 1 500 | 1 500 | 1620 | 1750 | 1860 | 1860 | 2100 | 2190 | | B | мм | 1450 | 1450 | 1 540 | 1 540 | 1 690 | 1 690 | 1 810 | 1 810 | 2 000 | 2 000 | 2 000 | 2120 | 2270 | 2380 | 2380 | 2620 | 2740 | | H | мм | 1294 | 1294 | 1 386 | 1 386 | 1 530 | 1 530 | 1 650 | 1 650 | 1 840 | 1 840 | 1 840 | 1960 | 2110 | 2230 | 2230 | 2456 | 2535 | | L | мм | 1274 | 1274 | 1 524 | 1 524 | 1 828 | 1 828 | 1 831 | 2 031 | 2 033 | 2 283 | 2 533 | 2534 | 2832 | 2835 | 3035 | 3285 | 4186 | | Lt | мм | 1769 | 1769 | 2 019 | 2 019 | 2 323 | 2 323 | 2 326 | 2 526 | 2 529 | 2 779 | 3 029 | 3030 | 3392 | 3445 | 3645 | 3995 | 4900 | | C | мм | 597 | 597 | 578 | 578 | 650 | 650 | 700 | 700 | 750 | 750 | 750 | 805 | 1205 | 1260 | 1260 | 1400 | 1450 |
|
|
|