 | Высокоэффективные проточные водогрейные котлы, превосходящие по экологическим параметрам требования Европейского стандарта "Blue angel", разработаны для систем отопления и горячего водоснабжения жилых, административных зданий и промышленных сооружений. Малые габариты и масса котлов при высоких значениях к.п.д. достигается за счет применения двух проточных теплообменников. Первый теплообменник изготовлен из гладких труб, выполненных из нержавеющей стали. Второй теплообменник состоит из ребристых труб из нержавеющей стали с лазерной сваркой основания ребра. Специальная конструкция наддувной газовой горелки с опрокинутым распределенным факелом , встроенная в конструкцию котла, обеспечивает стабильные условия горения во всем диапазоне регулирования мощности от 20 до 100% с сохранением технических характеристик: - КПД - не ниже 95%; - крайне низкая эмиссия оксида углерода (СО) от 2до 11 ppm и оксидов азота (NOx) от 10 до 30 ppm (в пересчете на сухие неразбавленные продукты сгорания); - низкий эквивалентный уровень шума (до 40 дБА) при номинальной мощности. Управление расходом теплоносителя осуществляется 3-х режимным циркуляционным насосом. Эксплуатация проточных котлов с высокой скоростью движения теплоносителя обеспечивает безнакипный режим работы поверхностей нагрева на воде с умеренной жесткостью (до 4,5 мг-экв/л). Рациональная конструкция котлов серии R3400 позволяет быстро выполнять сборку и разборку котла, что обеспечивает простоту и удобство ремонта и обслуживания. Котлы оснащены цифровыми блоками автоматического управления и автоматикой безопасности, а также индикаторами неисправностей. ТЕХНИЧЕСКИЕ ХАРАКТЕРИСТИКИ КОТЛОВ Rendamax R3400. |
| Модель | | 3401 | 3402 | 34013 | 3404 | 3405 | 3406 | | Полезная мощность | кВт | 657 | 729 | 853 | 965 | 1078 | 1189 | | КПД при номинальной мощности | % | 95 | 95 | 95 | 95 | 95 | 95 | | Расход природного газа | м3/ч | 80,8 | 90,1 | 105,4 | 119,3 | 133,2 | 147 | | Давление газа на входе, min | M6ap | 20 | 20 | 35 | 35 | 35 | 35 | | Давление газа на входе, max | M6ap | 25 | 25 | 100 | 100 | 100 | 100 | | Объем котловой воды | л | 50 | 53 | 70 | 75 | 80 | 85 | | Максимальное рабочее давление | 6ap | 6 | 6 | 6 | 6 | 6 | 6 | | D присоединения дымовой трубы | мм | 300 | 350 | 350 | 400 | 400 | 400 | | Присоединение газа | Dn | 2" | 2" | 2" | 65 | 65 | 65 | | D присоединения воды, прямая/обратная линия | мм | 65 | 65 | 80 | 80 | 80 | 80 | | D присоединения предохранительного клапана | Dn | 1 1/4" | 1 1/4" | 1 1/2" | 1 1/2" | 1 1/2" | 2" | | Марка циркуляционного насоса | | | UPS 65-120F | UPS 80-120F | LM 80-160/162 | | Потребляемая мощность | кВт | 2,15 | 2,15 | 2,15 | 3,12 | 3,12 | 3,12 | | Концентрация газа в сувхих неразбавленных продуктахnpoAyicrax: | | CO -2-11 ppm, NОx - 10-30 ppm (менее 30 мг/кВтч) | | Температура уходящих газов | | При 100% нагрузке- 140°C,при 80% - 95°C, при 60% - 80°C, КПД - 98% | | Эквивалентный уровень шума | | 40 дБ при номинальной нагрузке |
|
 | | Дополнительная комплектация системы управления : - регулятор для управления котлом с компенсацией изменения погодных условий (RME) - регулятор для управления двумя вторичными контурами системы теплоснабжения в зависимости от погодных условий (Е6). - блок каскадного управления котлами (KKM). |
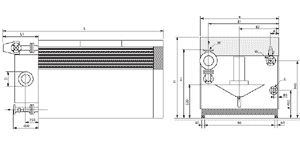
| Модель | | 3401 | 3402 | 34013 | 3404 | 3405 | 3406 | | Вес без воды | кг | 675 | 740 | 840 | 950 | 1 070 | 1 200 | | Ширина, B | мм | 1 430 | 1 430 | 1 430 | 1 430 | 1 400 | 1 400 | | Высота, H | мм | 1 330 | 1 330 | 1 330 | 1 330 | 1 330 | 1 330 | | Длина, L | мм | 2 265 | 2 265 | 2 653 | 2 653 | 2 658 | 2 658 | | B1 | мм | 1160 | 1210 | 1003 | 1053 | 1203 | 1253 | | B2 | мм | 665 | 665 | 565 | 565 | 665 | 665 | | B3 | мм | 170 | 120 | 127 | 77 | 127 | 77 | | B4 | мм | 1146 | 1146 | 946 | 946 | 1146 | 1146 | | B5 | мм | 115 | 65 | 115 | 65 | 115 | 65 | | H1 | мм | 1125 | 1125 | 1570 | 1420 | 1155 | 1462 | | L1 | мм | 595 | 595 | 610 | 615 | 615 | 770 | | L2 | мм | 700 | 700 | 1166 | 1166 | 1166 | 1166 | | L3 | мм | 108 | 108 | 88 | 88 | 88 | 88 |
|