 | Высокоэффективные проточные водогрейные котлы разработаны для систем отопления и горячего водоснабжения жилых, административных зданий и промышленных сооружений. Малые габариты и масса котлов при высоких значениях к.п.д. достигаются за счет применения медных труб с оребрением, полученным методом экструзии. Рациональная конструкция котлов R2000 позволяет быстро выполнять сборку и разборку котла, что обеспечивает простоту и удобство ремонта и обслуживания . Атмосферные газовые горелки низкого давления с малым коэффициентом первичной эжекции воздуха обеспечивают стабильные условия горения во всем диапазоне регулирования мощности котлов, от 20 до 100% с сохранением эксплуатационных характеристик и низкого уровня шума (до 25 дБА). Горелки устойчивы к снижению давления в газовых сетях и сохраняют работоспособность до давления 4 мбар (при соответствующем снижении мощности). Тепловые потери котлов от внешнего охлаждения сведены к миниуму за счет оптимальной конструкции топочной камеры со строенной высококачественной теплоизоляцией. Котлы оснащены блоками автоматического управления и безопасности, а также индикаторами неисправностей. ТЕХНИЧЕСКИЕ ХАРАКТЕРИСТИКИ Rendamax R2000.. |
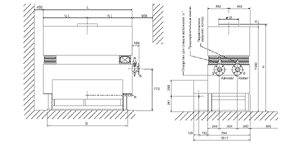
| Модель | | 2017 | 2022 | 2028 | 2034 | 2041 | 2048 | 2056 | 2066 | 2077 | 2090 | 2105 | 2122 | | Полезная мощность | кВт | 57,7 | 74,6 | 95,8 | 117,7 | 139,1 | 162,7 | 190,7 | 222,1 | 261,1 | 309,0 | 361,0 | 425,0 | | КПД при номинальной мощности | % | 90,3 | 90,3 | 90,3 | 90,3 | 90,3 | 90,3 | 90,3 | 90,3 | 90,3 | 90,3 | 90,3 | 90,3 | | Расход природного газа | м3/ч | 6,0 | 7,9 | 9,9 | 12,2 | 14,7 | 20,22 | 20,2 | 23,5 | 27,5 | 32,3 | 37,4 | 43,6 | | Рабочее давление газа на входе | M6ap | 20 | 20 | 20 | 20 | 20 | 20 | 20 | 20 | 20 | 20 | 20 | 20 | | Объем котловой воды | л | 5,6 | 5,9 | 6,2 | 6,5 | 6,9 | 7,3 | 7,7 | 8,3 | 8,9 | 9,6 | 10,5 | 11,4 | | Максимальное рабочее давление | 6ap | 11 | 11 | 11 | 11 | 11 | 11 | 11 | 11 | 11 | 11 | 11 | 11 | | D присоединения дымовой трубы | мм | 200 | 225 | 250 | 250 | 300 | 300 | 350 | 350 | 400 | 400 | 450 | 450 | | Присоединение газа | Dn | 3/4" | 3/4" | 1" | 1" | 1" | 1" | 1 1/2" | 1 1/2" | 1 1/2" | 1 1/2" | 1 1/2" | 1 1/2" | | D присоединения воды,прямая/обратная линия | мм | 2" | 2" | 2" | 2" | 2" | 2" | 2" | 2" | 2" | 2" | 2" | 2" | | D присоединения предохранительного клапана | Dn | 3/4" | 3/4" | 3/4" | 3/4" | 3/4" | 3/4" | 1" | 1" | 1" | 1" | 1" | 1" | | D присоединения сливного клапана | Dn | 3/4" | 3/4" | 3/4" | 3/4" | 3/4" | 3/4" | 1 1/4" | 1 1/4" | 1 1/4" | 1 1/4" | 1 1/2" | 1 1/2" |
|
 | | Дополнительная комплектация системы управления : - электронная система розжига (R18E) - цифровая система управления с PID регулятором, упрощающим эксплуатацию котла (R18 М). - погодозависимое регулирование, программирование режима работы, например с уменьшением мощности в ночное время (R18 W). |
| Модель | | 2017 | 2022 | 2028 | 2034 | 2041 | 2048 | 2056 | 2066 | 2077 | 2090 | 2105 | 2122 | | Вес без воды | Кг | 225 | 240 | 255 | 270 | 290 | 310 | 335 | 360 | 395 | 430 | 470 | 520 | | Высота (H) | мм | 1612 | 1612 | 1612 | 1612 | 1612 | 1612 | 1612 | 1612 | 1632 | 1632 | 1652 | 1652 | | Длина основания(B) | мм | 704 | 783 | 879 | 974 | 1085 | 1196 | 1323 | 1482 | 1657 | 1863 | 2101 | 2371 | | Длина котла(L) | мм | 820 | 898 | 994 | 1090 | 1200 | 1312 | 1438 | 1598 | 1772 | 1978 | 2216 | 2486 |
|